Architectural Living.

Thoughtfully Downsized.

Architectural small homes and second dwellings, designed and built in Australia.

Frontier.Life designs and builds architectural modular homes and small second dwellings across Victoria. Designed for downsizers and discerning property owners, our homes offer a refined alternative to traditional building — delivering permanent, high-quality secondary dwellings with clarity and certainty.

Freedom Without Compromise.

Woman sitting at a wooden desk near a large window, drinking from a mug and looking at her phone inside a cozy room with wooden flooring and furniture, a potted fern plant on the desk.

Why Modular Makes Sense

Whether creating independent space for family, generating additional income, or downsizing without compromise, a thoughtfully designed second dwelling offers flexibility — without the disruption of a major renovation or rebuild.

  • Independent living, thoughtfully designed

  • Flexible space for family, guests or income

  • Architectural quality in a smaller footprint

  • A permanent addition that strengthens your property’s value

Built for Small Second Dwellings. Designed for Long-Term Living.

Frontier.Life specialises in architectural small second dwellings (SSD) designed to meet Victorian planning pathways while maintaining the presence and quality of a permanent home.

Our modular system allows each dwelling to be precisely manufactured, efficiently installed, and thoughtfully expanded over time.

Exterior wall light on vertical timber cladding of a modern modular home in Victoria

Purpose-Built for SSD

  • Designed specifically for Small Second Dwellings in Victoria

  • Compliant, permanent structures — not temporary units

  • Engineered structural frame with lifetime structural warranty

Modular, Made Intelligent

  • 8m x 3m modules designed for efficient transport and installation

  • Connectable modules that allow future expansion

  • Precision-built in controlled conditions for consistent quality

Designed to Belong

  • Architectural detailing and refined proportions

  • Materials selected for longevity in Australian conditions

  • Designed to complement your existing home and landscape

EXPANDABLE MODULAR SYSTEM

Designed to Fit Your Property. And Your Plans.

Each Frontier.Life dwelling is composed of precision-built 8m x 3m modules that can stand alone or connect seamlessly. This modular system allows homes to remain compact — or expand over time — without compromising architectural integrity.

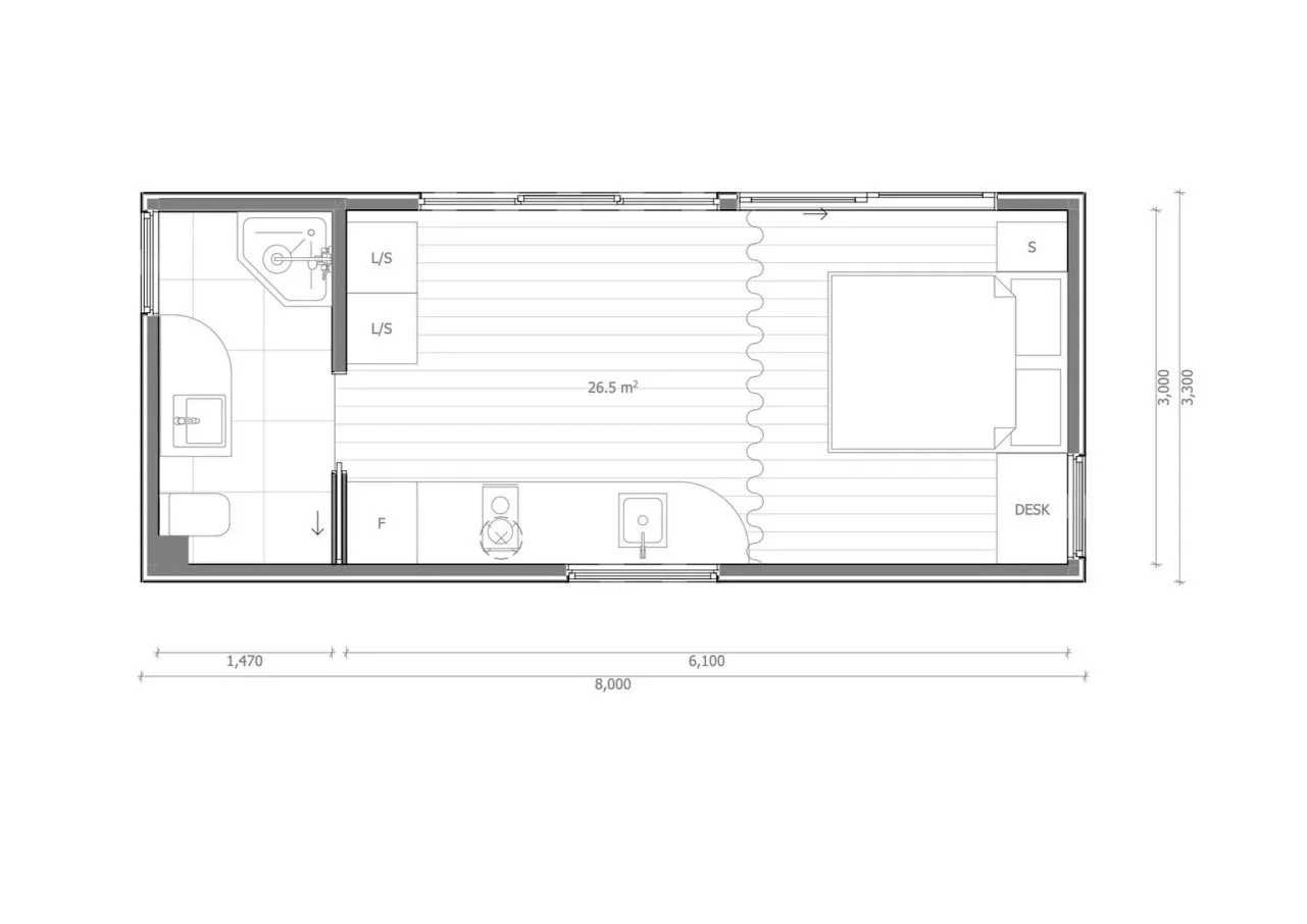
Floor plan of a small modular home with a bedroom, bathroom, and combined living and kitchen area, with dimensions and furniture layout.

Single Module

Approx. 24m2

Ideal for studio living or guest accommodation.

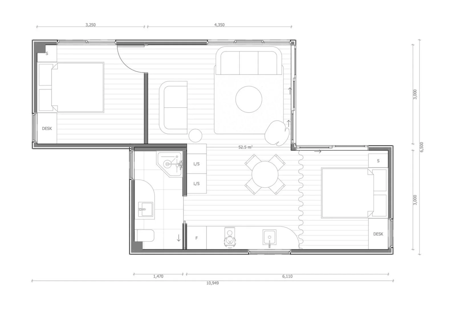
Floor plan of a granny flat with two bedrooms, a living room, kitchen, and bathroom, with measurements in meters.

Double Module

Approx. 24m2

Comfortable one-bedroom configuration.

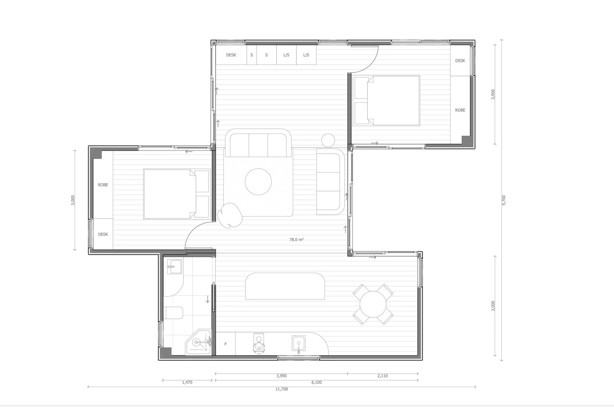
A detailed floor plan of a modular house, showing three bedrooms, a living room, a kitchen, and a bathroom with dimensions and labels for furniture and fixtures.

Triple Module

Approx. 72m2

Expanded living with additional flexibility.

A Considered, Structured Process

We follow a clear, staged approach designed to provide certainty from the outset through to handover.

01

Initial Consultation & Site Review

We begin with a focused discussion about your property, objectives, and whether a Small Modular Dwelling is appropriate. We assess planning pathways in Victoria and identify any early site considerations before design begins.

02

Preliminary Estimate & Feasibility

Based on your selected configuration and site conditions, we provide a preliminary estimate and outline any permit requirements. This stage ensures clarity before committing to detailed design.

03

Design Development

We refine layout, orientation, and specifications to suit your site and needs. This includes detailed drawings, planning documentation, and coordination of required reports such as engineering, energy and soil assessments.

04

Contract & Manufacture

Once documentation and permits are in place, we enter a formal building contract with fixed pricing for the home component. Your modules are then precision-built in controlled conditions.

05

Installation & Handover

Following site preparation and footing installation, your dwelling is delivered and installed efficiently. Final inspections and certification are completed before handover and occupancy.

Sarah & Keith

“They're true craftsmen. They take great pride in their work and the results are a top quality and beautiful home for us.”

Karen and Rob

“Can highly recommend these guys as high quality tradesmen.”

Modern black building with large glass windows at sunset, featuring a wooden deck and potted plant in the foreground.

Get in touch